Перепланування в квартирі або будинку передбачає облаштування нових дверних прорізів або арочних склепінь. Не рідко, в таких випадках, зачіпаються несучі стіни, що може призвести до фатальних наслідків. Мінімізувати подібний ризик дозволяє тандем використання нових технологій і старого досвіду майстрів.
- Несучі стіни: особливості та допуски
- Ряд підготовчих аспектів
- Технології виготовлення проходів
- Попереднє облаштування отвори і сам процес
Несучі стіни: особливості та допуски
При яке проявилося бажання під час ремонтних робіт і перепланування, зробити отвір в несучій стіні цілком припустимо, хоч і завдання не з легких.

Прорізи в несучих стінах вимагають максимальної уваги і посилення
Точніше сказати, фактично всі роботи з влаштування дверного отвору будуть зроблені з нуля. Прорубати отвір дверей в багатоповерховому будову, значить зробити своїми руками порушення в конструкції цілісного будівлі.
Наслідки несанкціонованого втручання в перегородки несучого значення, можуть призвести до фатальних наслідків. Але це зовсім не означає, що зробити дверний проріз в стіні або арочне склепіння зовсім неможливо заборонено. Фактично всі ризики допустимо звести до нуля, якщо використовувати сучасні технології, досвід майстрів і враховувати всі особливості внутрішньої несучої перегородки.
Якщо зменшення отвору під силу виконати і не підготовленим домовласникові своїми руками, а розширення проходу в несучих стінах вже знайоме нам і по силам, то процес, як зробити отвір в несучій стіні, практично нічим не відрізняється, тільки обсягом робіт.
Варто зазначити, що рішення такого роду цілком допустимо з урахуванням дотримання необхідних умов технологій. Але при можливості краще відмовитися пробивати отвір в несучій стіні.
Перепланування, яка зачіпає капітальні перегородки усередині будівлі, особливо багатоквартирного, по суті, небажана. Адже несучі стіни самі по собі в стані спокою схильні колосальної навантаженні. Інженерні розрахунки, закладені в конструкцію будівлі, при дії виявляться під загрозою. Тому найменше порушення технологій виконання пробивних робіт в стіні, здатне призвести до переміщень перекриттів багатоповерхового будинку і руйнування частини будови в цілому.

Конструктивні типи багатоповерхових будівель
Особлива вимога: повністю зносити несучу стіну категорично заборонено.
Всі роботи, пов’язані з впливом на несучу стіну, повинні узгоджуватися з відповідними органами, і проводитися в узгодженні з попередньо розробленим і затвердженим проектом перепланування. На жаль, не для будь-якої будови допустимо отримати дозвіл на подібні роботи по ряду представлених органами причин. Особливо це відноситься до власників квартир перших двох поверхів, стіни яких несуть на собі особливу фундаментальну навантаження.
Правильно підготовлений пакет документації здатний втілити мрію і відкрити нові горизонти куточків квартири:
- поверховий план будови;

Приклад плану поверху багатоквартирного будови
- план квартири (план несучих стін поверху);

План, що відображає несучі стіни та перегородки другорядного значення
- документи, що підтверджують права на власність житлової площі;

План перепланування
- інженерний ескіз майбутніх робіт;

Порядок робіт облаштування отвору в несучій стіні
- поетапний план робіт з перепланування;
- заява про майбутніх роботах у відповідній формі.
Багато хто намагається обійти етап підготовки відповідної документації, яка дає дозвіл на проведення перепланування квартири.

Варіант затверджує законність дій
Тим більше, що існують приватні особи (і навіть компанії, які пропонують послуги, що допомагають узаконити перепланування після проведених заходів. Але власникам житла варто знати, що стосовно останніх постанов, роботи по самовільному виготовлення дверних прорізів у стінах несучого значення караються високими штрафними санкціями.
У гіршому варіанті розгляду справи, законних власників можуть позбавити власності і права проживати в квартирі. В іншому випадку, при самому сприятливому рішенні суду та висновків експертів домобудівництва, можуть просто змусити повернути стіні колишню цілісність. Навіть при вдалому приховуванні факту впливу на капітальну стіну, наслідки не змусять себе довго чекати у вигляді тріщин та інших зрушень.
Дозвіл зробити отвір в несучій стіні в цегляному багатоповерховому будові отримати набагато простіше.
Ряд підготовчих аспектів
Отже, якщо заповітний дозвіл на перепланування квартири отримано, то можна приступати до безпосередніх робіт.

Дизайнерський варіант перепланування квартири з перенесенням прорізів в стінах
Але, перш за все, варто правильно підготуватися до дій:
Що стосується планування внутрішнього приміщення, то це питання, звичайно ж, потрібно вирішити заздалегідь, щоб потім не роздумувати над незручністю розташування нового проходу в стіні. Як і визначитися з проектом отвору дверей, оскільки це безпосередньо пов’язано з порядком, технологією та складністю майбутніх робіт.
Варіантів конструкцій переходів в сусідні кімнати існує декілька:
- Стандартних розмірів проріз двері в стіні класичної форми, вирізаний у новому місці.
Такі прорізи в цегляних стінах робити найпростіше, але ступінь яке зазнає навантаження на перегородку варто залежно від облаштування.
- Арочне склепіння отвору є ускладненим варіантом облаштування нового переходу в перегородці.

Посилений арочне склепіння в несучій стіні
В даному варіанті варто розраховувати висоту і форму вигину щодо матеріалу стіни. Арочні розміри дверних прорізів можуть бути абсолютно будь-якими, але не перевищують 200 см (в залежності від довжини самої стіни). При цьому зробити отвір в цегляній стіні у формі арки здатний тільки майстерний каменяр, який розбирається в співвідношенні розташування швів цегляної кладки. Тоді як, різання бетону під арку спрощує весь хід заходу.
- Перенесення отвору в незначній мірі по стіні в сторону представляє собою найбільш безпечний варіант взаємодії з несучою стіною.

Перемичка дозволяє зрушити отвір в бік
Такий варіант зміщення проходу передбачає зсув дверної перемички в потрібну сторону. Частина відкрився переходу просто закладається штучним матеріалом або зашивається гіпсокартоном. Додаткове розширення отвору проводиться способом, який розглядався при збільшенні прорізів у стіні.
Перед демонтажних процесом не полінуйтеся вивчити і стіну, в якій будете вибивати отвір. Це дасть визначення матеріалу перегородки, що безпосередньо залежить від технології використовуваного процесу. Габарити майбутнього проходу так само залежать від матеріалу стіни.
Технології виготовлення проходів
Дверний отвір в стіні капітальної споруди у минулі часи робився відбійним молотком, бо іншого типу пристосування для цих робіт відшукати було проблематично. Та й технології тоді такі були. Цей метод, звичайно, перевірений часом і інтенсивний, але в багатьох варіантах просто малоефективний. Більш того, відбійний молоток в процесі використання може принести несучої стіни ряд негативних наслідків:
- Отвори в цегляних стінах відбійним молотків робити категорично не рекомендовано, оскільки з причини сильної вібрації порушиться цілісність перегородки.

Відбійний молоток, навіть сучасного типу, не рекомендовано використовувати для пробивання отвору в несучій стіні
- Плити перекриття внутрішніх приміщень з бетону отримують мікротріщини з тієї ж причини вібраційних впливів.
- Бетонні перегородки наділені металевої зміцнює арматурою, яка ускладнить процес, де потрібно буде використовувати додаткову техніку.
- Вибитий отвір молотом вимагає додаткової обробки торців отвору, що тягне використання додаткового інструменту, відповідно і грошові витрати.
- Процес надто галасливий і брудний.
Сучасні технології в будівництві дозволяють зробити отвір в глухій стіні досить швидко, щодо чистіше і з найменшими витратами. Отже, перед тим, як зробити дверний отвір, варто визначитися з технологією робіт:
- Канатна різання. Установка в основі роботи містить у собі спеціальні ріжучі канатні елементи і втулки, з встановленими штучними діамантами. Ефективність використання канатного обладнання полягає в малому пилеутворення, зниженою вібрації і шум.

Встановлення канатної різання
- Алмазна різка. У процесі використовуються зміцнені дискові насадки з алмазним напиленням для відтворення мокрого процесу різання. Установка має резервуар з водою для робіт, що дозволяє остуджувати деталі і запобігати надмірне пилоутворення.

Різання отвору диск з алмазним напиленням
- Алмазне буріння. Технологія передбачає використання свердла квадратного перерізу або бура конусоподібної форми з алмазним напиленням. Метод дозволить зберегти цілісність бетонної або цегляної стіни, і знизити витрати на додаткову обробку торців отвору.

Установка алмазного буріння отворів
Попереднє облаштування отвори і сам процес
Перепланування в квартирі зі зміною розташування проходів передбачає надлишок будівельного сміття і пилу.

Розміри майбутнього отвору і використовувані матеріали для посилення
Перед роботами бажано звільнити приміщення від меблевої розстановки і техніки. Перед тим, як приступити до безпосереднього демонтажу, варто перенести розміри дверних прорізів на площину. Розмір отвору підбирається у відповідності з обмежуючими вимогами: висота не більше 210 см, а ширина – до 200 див.
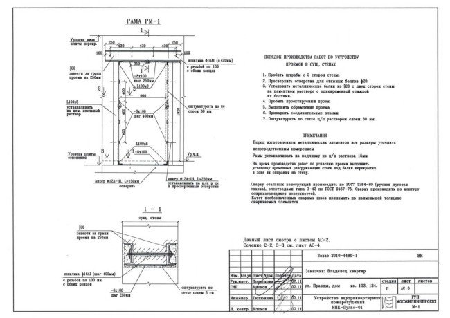
Попередньо, коли різка бетону буде розпочата, варто виготовити перемичку, тобто зробити посилення отвору. Перемичка покладе на себе основну тимчасове навантаження вище розташованих перекриттів. Таке попереднє облаштування досить важливо в процесі, оскільки саме перемичка створить рівень безпеки при роботах та подальшої експлуатації переходу:
- плити перекриття поверху зміцнюються спеціальними підпірками або домкратами з обох боків переходу;
- в стіні наскрізь проробляються отвори під наскрізні підпори;
- виставляється опорна установка;
- верхня частина стіни по периметру переходу очищається від декоративної обробки й розмічається під перемичку;
- потім стіна робиться під швелер і проробляються отвори під болти стяжок;
- далі встановлюється перемичка з швелера, скріплюється болтами крізь стіну.
Перед тим, як буде встановлено швелер, штробу отвору під перемичку варто закрити розчином. Після чого і встановити туди перемичку, і стягнути її наскрізними болтами. Перемичка повинна перевищувати розміри майбутнього проходу мінімум на 10 см в кожну зі сторін.
Весь процес монтажу посилення отвору швелером варто відтворити по периметру розміченого отвору в стіні.

Швелер посилення закладається на цементний розчин
Проявилися порожнечі в штробі закласти тим же цементним розчином і шматками будівельного матеріалу стіни. Болтові з’єднання повинні зміцнюватися шайбами. Після того, як буде зроблено посилення прорізу, може починатися різка бетону стінового перекриття. Метод, який буде при цьому використаний, підбирається на особистий розсуд і доступність.
З технічної сторони розгляду питання створення отвору в глухий несучої стіни, особливої різниці в діях за типом розширення посадкового місця під двері або облаштування нового немає.

Етапи встановлення опор і перемички
Переносити або створювати отвори в цегельній стіні або бетонною, це, насамперед, посилити прохід вставкою перемички зверху. Такий процес є самим важливим, як для несучих стін, так і для перекриттів другорядного значення, а сам демонтаж проводиться набагато простіше і безпечніше.
