Перепланування внутрішнього приміщення, ремонтні роботи не рідко вимагають зменшити дверний проріз. Нехай не лякає масштабність капітальних робіт, адже сам процес досить простий. Зробити отвір менше своїми руками допустимо, але перш варто визначитися зі способом, який змінить розміри прорізів. Адже їх існує кілька.
- Способи зменшення міжкімнатного отвору
- Підбір матеріалу для робіт
- Звуження отвору цегляною кладкою
- Зменшення прольоту гіпсокартоном
Способи зменшення міжкімнатного отвору
Зменшити розміри міжкімнатних отворів під стандартні розміри дверей може знадобитися при найрізноманітніших обставинах.

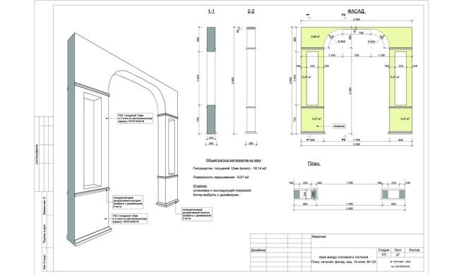
Ескіз перепланування з зменшеним прорізом дверей
Дверний отвір нестандартного розміру в багатоквартирних будівлях зустрічається фактично в усіх квартирах – урочистий прохід у вітальню кімнату (в побуті відома, як залу). Отже, найбільш поширені причини, які повинні спонукати домочадців на зменшення отвору:
- значна перепланування приміщення;
- дизайнерське рішення внутрішнього оформлення, де вільна площа стін більш корисна, ніж широкий отвір;
- збільшення корисного простору для розміщення додаткової меблів;
- утеплення кімнати за рахунок зменшення проходу;
- стандартна висота дверного прорізу щодо показань висоти, встановленої на території Російської Федерації, відповідає 2 метрам. Тому привід зменшити розміри отворів, при наявності нестандартних прольотів в житловому або іншого призначення приміщенні, у наявності.
Існує кілька варіантів відповідей на запитання, як зменшити дверний проріз. Кожен з них передбачає проведення будівельних робота, більшою або меншою мірою. При цьому, вони відрізняються між собою щодо декоративною складовою.

Конструкції отворів із зміненими параметрами
Отже, зменшуємо розміри прорізів наступним чином:
- Прямий зсув стіни.
З точки зору принципових змін конструкції проходу між сусідніми кімнатами, немає практично ніяких. Просто змінюються габарити отвору під встановлений розмір дверної конструкції. Сам периметр залишається недоторканим, із збереженням прямокутних обрисів. В даному випадку міжкімнатний отвір візуальної залишається таким же, але додається додаткова площа стіни і самої кімнати.
- Арочна конструкція.
Арка є конструкцією, яка дає можливість не тільки зменшити ширину отвір дверей, але і знизити його. Даний варіант дозволяє зробити отвір не тільки функціональним, але і головним декором приміщення. При цьому, його можна назвати вдалим, якщо є намір простір суміжних кімнат імовірно возз’єднати, так як арочне склепіння не передбачає встановлення дверного вироби.
- Зріз стіни і фрамуга.

Стандартний отвір, занижений фрамугою
Основний функціонал проходу в такому варіанті зменшення проходу можна зберегти, якщо вставити дверний блок відповідних розмірів, а над стулкою зробити фрамугу. Отвір дверей з однієї або з обох сторін зашивається підібраним матеріалом, а вгорі встановлюється декоративний елемент, який прикрасить приміщення, і освітлить додатковим джерелом проникнення світла.
- Конструкція складної форми.
По своїй суті, дана конструкція є арочним склепінням, який дозволяє заповнити дверний проріз наполовину або ж оформити його фігурно. Одну зі сторін і не зменшувати, а просто обладнати там полиці або вузький шафка під декоративним вітражним склом.
Підбір матеріалу для робіт
Підібраний план майбутнього декорування або звичайного звуження отвору, передбачає використання особливого типу технологій, які будуть використовуватися в роботі. Перед роботами, а швидше за все ще на стадії задуму, рекомендуємо зробити план, де буде:
- намальований майбутній вигляд отвору;
- зняті точні розміри;
- і візуально представити цю всю конструкцію у натуральному вигляді.

Ескіз майбутнього прорізу з урахуванням всіх використовуваних матеріалів
Розрахунок кількості потрібного матеріалу варто залежно від типу використовуваного матеріалу. Так зменшити розміри прорізів допустимо з допомогою таких матеріалів:
- Цегла, саманні блоки.
Цегляна кладка буде корисна при бажанні створити міцний монументальний прохід більш вузького розміру. Кладка цегли є досить трудомістким будівельним процесом зменшення дверного отвору. До того ж, під цеглу доведеться зняти якусь площа підлогового покриття, щоб зв’язати кладку з плитою перекриття, якщо дійства проходитимуть у квартирі.
Саманні блоки, порівняно з цегляною кладкою, зекономлять час на кладку, внаслідок збільшеного розміру. При цьому такі блоки рекомендовано використовувати в будівлях, де товщина стіни дорівнює товщі будівельного елемента.
- Автоклавні газоблоки – сибит.

Сибит для внутрішніх і зовнішніх робіт
Газоблоки зручно використовувати в будівельних роботах, а зокрема щодо зменшення проходу в якості будівельного матеріалу. Причина цього передусім у легкості виробів, а так само один блок сибита може замінити приблизно 15 штук керамічної цегли. Сибит не вимагає до себе додаткової уваги щодо чорнової обробки, як цегла. Матеріал сам по собі наділений тепло – і шумоізоляційні характеристики, а так само паропроникністю рівня, що перевищує показник цегли.
Плюс до всіх переваг сучасного будівельного виробу додається і простота в укладанні: блок можна розпиляти, постругати або надрізати при необхідності.
- Штукатурка.
При необхідності звузити міжкімнатний дверний проріз всього на кілька сантиметрів, допустимо застосувати простий метод оштукатурювання поверхні торцевих стінок проходу. Така корекція габаритів за розміром може бути цілком достатня для підгонки придбаного блоку дверної конструкції.
- Гіпсокартон.
За допомогою гіпсокартону допустимо не тільки зменшити прохід, але і створити декоративну варіацію. Матеріал доступний в роздрібному продажі, легкий в роботі і підходить для обробки будь-якого типу поверхонь.
- Брус і дошки з деревини.
Звузити вертикаль проходу за допомогою бруса і дощок досить легко, але сучасні майстри, не дивлячись на простоту технології, досить рідко стали використовувати деревину для подібних цілей. Причина того полягає у фізичному непостійність матеріалу, тобто натуральне дерево має властивість «гуляти» під впливом вологи або перепаду температури в приміщенні. Так декоративна обробка поверхні стін може перестати тішити всього через нетривалий період часу.

Варіанти зменшення отвору дверей
Підбір того або іншого типу матеріалу для робіт, щоб зменшити розміри міжкімнатних переходів, залежить від поставлених цілей. Тобто визначтеся, чи хочете ви декоративний елемент з додатковими полицями в отворі, або просто звузити перехід, щоб встановити туди стандартні розміри дверей.
Якщо є сумніви, то не соромтесь і візьміть з собою в будівельний магазин підготовлений ескіз майбутнього отвору, проконсультуйтеся з продавцем і зробіть правильний вибір того або іншого типу матеріалу і його кількості.
Нижче будуть розглянуті основні моменти робіт з цегляною кладкою і гіпсокартоном, як з найбільш поширеними будівельними матеріалу, що використовуються в будівлях приватного типу. Звичайно, заздалегідь рекомендовано підготувати дверний отвір спеціальним чином: демонтувати старий блок і закрити виявлені пошкодження стіни.
Звуження отвору цегляною кладкою
Для монтажних робіт по укладанні цегли варто подбати про наявність допоміжних інструментів:
- рівень;

Інструмент для робіт з цегляною кладкою
- рулетка;
- відро для замішування цементу;
- суміш для цементного розчину;
- будівельний міксер (можна замінити міцною палицею);
- шпатель;
- кельма;
- гумовий молоток;
- арматура монтажна (у діаметрі близько 4 см);
- ножівка по металу;
- дерев’яний брус (при необхідності закладки верхній частині прольоту);
- штукатурка для чорнових робіт.

Цегляна кладка для звуження отвору дверей
Цегляна кладка лягає на цементний розчин такого складу: вода, 34 сухого цементу і 14 просіяного піску. Розчин замішується консистенцією середньої густоти. Укладання матеріалу проводиться на рівній поверхні, а для фортеці частини стіни, прокладається арматура: поперек торця можна використовувати 3 відрізка, а вздовж – 2.
Закладка верхній частині проводиться за допомогою арматури, цегли та бруска. Спочатку до торцевих краях стіни закріплюється брус, на який укладається арматура (2 відрізка пруту), на що далі робиться укладання цегли або сибита. Поверхні в подальшому обштукатурюють і чекають повного висихання стіни. Після всього, брус з прольоту прибирається, а на законне місце встановлюється дверний короб і навішується стулка.
Зменшення прольоту гіпсокартоном
Гіпсокартон відмінно підходить для внутрішніх робіт будь-якого виду, він легкий і простий у використанні. При цьому матеріал не вимагає особливих навичок в будівельному ремеслі, але знадобляться деякі інструменти:
- рулетка;
- рівень;

Інструмент для роботи з ГКЛ
- олівець для наміток майбутньої форми проходу;
- алюмінієвий профіль;
- ножиці для різання профілю;
- різак для листів гіпсокартону;
- дриль або шуруповерт;
- саморізи і клей;
- ґрунтова суміш і штукатурка для чорнової обробки.
Спочатку на стелі і підлозі вимальовується контур майбутньої конструкції при використанні олівця, рівня і рулетки. За відмітками креслення прикручуємо профіль. Далі нарощується стіна вирізаними за формою листами гіпсокартону. До стінової поверхні листи закріплюються за допомогою будівельного клею, а до профілю – саморізами. Далі поверхні грунтуються і оштукатурюються, після чого слід декоративна обробка стін.

