Самостійна установка дверного міжкімнатного блоку. Підготовчі заходи, які полегшать процес монтажу, і докладна інструкція установки міжкімнатних перекриттів.
- Функціональність міжкімнатних перекриттів
- Підготовчі роботи
- Етап, від якого залежить естетичність і надійність
- Нюанси, що приходять з досвідом
Функціональність міжкімнатних перекриттів

Двері є виробом, що складається з чотирьох основних сполучних механізмів і вузлів. Хоча б одиничне відсутність одного з них, зробить теслярська виріб, як мінімум неповноцінним, а як максимально – непрацездатним. Інструкція підходу до питання щодо монтажу міжкімнатних дверних коробів, особливо власними силами, комплексна. Комплексність підходу полягає в наступному:
Про це та про деякі тонких моментах при монтажі дверей і буде йти мова, що дозволить не тільки полегшити процес самої роботи, яка передбачається проводитися своїми ж силами, але і збільшить експлуатаційний термін дверей. Варто самому усвідомити функціональність міжкімнатних перекриттів в житловому приміщенні.
Функції міжкімнатних дверей, крім декоративного інтер’єрного оформлення, досить корисні щодо практичності:

- Інтер’єру житлового приміщення надається закінчений і естетичний вигляд після ремонтних робіт при установці дверей;
- Ізолюються житлові приміщення та робочі зони своїми ж руками;
- Окремим кімната гарантована звуко – і светоизоляция;
- З’являється можливість на житлових площах підтримувати комфортний температурний показник при використанні систем охолодження (кондиціонерів) та обігрівальних систем.
Рішення руками зробити процес монтажу самостійно вельми благородну і вдячна справа, оскільки в даний час майстер по установці міжкімнатних дверей своїми ж руками візьме непомірну плату. Так руками майстра, вироблені монтажні роботи, можуть потягнути і інші види оздоблювальних робіт, при розбіжності товщі стіни і дверного короба.
Монтажні роботи
Параметри монтажних робіт
Орієнтовна середня вартість робіт (оплата майстра по установці)
Демонтаж старих дверей
2000600 мм
від $20
Монтаж дверного блоку міжкімнатного
2000600 мм
від $60
Облицювання укосу добірними елементами
2000600100 мм
від $40
Обробка отвору гіпсокартоном
2000600100 мм
від $38
Оштукатурювання дверного отвору
2000600100 мм
від $48
Рішення заданої задачі своїми власними руками допоможе заощадити кошти, а нижче надана інформація по установці дверей – нерви, оскільки процес вимагає терпіння, точності, уваги і ретельності.
Підготовчі роботи

Старт підготовчих робіт починається з ретельного продумування майбутнього процесу. Продумування починається правильного підбору дверей, які більше підходять для конкретного приміщення. Тип дверей: будуть вони на одну стулку або на два, і в яку сторону відкриватися їм краще і зручніше для простору приміщення.
В комплекті дверного блока повинна бути дверна коробка, полотно і наличники. У роздрібному реченні, в основному, представлені моделі дверей зі стандартними дверними коробами, розмір ширини, якого дорівнює приблизно 10 см. Товщина стін в стандартних квартирах – 15 см (+-5 см). Так в роздрібних мережах коробки з подібною шириною дошки рідко представлені. Щоб надалі не докуповувати добори для дверей, варто замовляти дверний короб в столярній майстерні окремо, щоб самостійно встановлена двері виглядала естетично.
Коли стартує, установка міжкімнатні двері вже повинні лежати в приміщенні. Для подальшого проведення робіт своїми власними руками, потрібно придбати наступні інструменти (допустимо і позичити) і матеріали:
- Для закріплення короба до стіни отвору потрібні анкерні болти;
- Для расклиновки міжкімнатних дверей, необхідні пластикові або дерев’яні клини;
- Балон монтажної піни;
- Шуруповерт або дриль;
- Будівельний рівень;
- Стамеска, стусло і ножівка по дереву.
Витратна частина на самостійно проведені роботи правильно не велика, порівняно, скільки пішло коштів на оплату монтажникові.
Необхідний інвентар
Розмір і кількість в упаковці (не обов’язково купувати упаковку)
Орієнтовна середня вартість матеріалу в роздрібних мережах
Короб для дверей під замовлення
2200*800*150
від $20
Анкерні болти
10*120 мм (50 шт/уп.)
від $16
Клини фіксуючі
1,5*1,5*16 мм (100 шт/уп.)
~ $2,98
Балон монтажної піни + пістолет під балон
1000 мл
~ $12
Шуруповерт (можна позичити)
900 Вт
~ $22.38
Будівельний рівень (можна позичити)
~600 мм
~ $2.59
Стамеска
25 мм
~ $3
Пластикове Стусло
233*53*53мм
~ $2,34
Ножівка по дереву
400 мм
~ $6.44
Перед початком етапу встановлення міжкімнатні двері повинні відлежатися в теплому приміщенні, де сировина набере необхідну відповідну вологість кімнати. В цей час, починаємо демонтувати старі двері. Звичайно, ламати, не значить будувати. Акуратно знімаємо правильно полотно своїми єдино доданими силами з петель, що проробляється у відкритому стані. Далі самостійно очищаємо отвір від старої накладеної по периметру штукатурки і висмикуємо своїми ж руками встановлений короб. От і все. Поверхня отвору зачищається і стартує наступний етап, який диктує інструкція по установці.
Етап, від якого залежить естетичність і надійність
Установлення міжкімнатних дверей своїми руками починається з монтажу за місцем дверного короба. Самостійно пройти цей етап не так вже й важко. Варто, звичайно, попередньо замовити його складання на місці виробництва. Але буває, що чотири складові приходять в окремо, складання їх не варто особливих зусиль і зробити це можна самостійно.
Якщо установка міжкімнатні двері проводиться до остаточного процесу обробки підлог або запланована укладання на підлогу килимового покриття, то потрібно враховувати толщь даного покриття. До товщини килима додається до 10 мм зазор між поверхнею підлоги і ходом двері. Так установка відбудеться правильно.
Інструкція монтажу дверного короба:

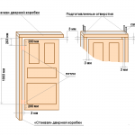
Установка дверного короба
- Короби початкова установка міжкімнатні двері (полотнище) укладаються на підлогу, таким чином, як передбачається остаточний вигляд в прорізі. Під полотно підганяється розмір короба. Для збереження технологічних зазорів, особливо пам’ятаємо про нижньому зазорі, рекомендується використовувати смужки картону.
- Деталі скріплюють саморізами, при необхідності ножівкою по дереву відпилюють правильно надлишки.
- Далі короб своїми ж руками потрібно встановити в отвір і зафіксувати розпірними клинцем у верхньому просвіті між стіною отвору і дошкою.
- Найбільш відповідальним моментом є вирівнювання силами рівня петлевий стійки короба в двох площинах. Фіксується стійка в задньому положенні з використанням клинів. Таким же чином вирівнюється удавана стійка. Для контролю, потрібно зробити вимір ширини між стійками внизу і вгорі короби.
- Востаннє своїми ж руками варто переконатися в строгої горизонтальності верхньої планки, остаточна установка міжкімнатні двері прикладаються до короба. Полотно поки відкладається, а короб закріплюється анкерами до укосу. Залишилися отвори на дошці треба встановити декоративні заглушки.
Нюанси, що приходять з досвідом
Самому встановити міжкімнатні двері правильно допоможуть деякі рекомендації, які у багатьох напрацьовуються з досвідом:
- Робляться відмітки розташування петель. На петлевий дошці короби на відстані, приблизно в 25 см від верху і низу, робиться розмітка розташування петель.
Для уникнення похибок, виміри варто робити самостійно і з використанням одного вимірювального приладу.

Невеликі заглиблення під петлі
- За допомогою стамески на торці полотна робляться невеликі заглиблення під петлі. Площину під петлю повинна бути рівною в ідеалі.
- Петльові конструкція розбирається на деталі, нижня частина (з втулкою) яких прикручується до короба, а установка верхньої (з ніжкою) — до полотна дверей.
- Ніжки прикріплених петель змащують мастилом (графітової) або машинним маслом. Далі полотнище навішується на петлі в розкритому стані.
Установка своїми ж руками проведена правильно, якщо дверне полотнище в відкритому стані, скільки протяг не ганяє, не відкривається самостійно.

- Перед заповненням просвіту між коробом і прорізом стіни монтажною піною, встановлюються додаткові розпори на рівні петель і дверної ручки. Піна наноситься невеликим шаром, як остаточна установка міжкімнатні двері попередньо накриваються захисною плівкою, а стіна злегка змочується водою з пульверизатора для кращого зчеплення піни з поверхнею.
В кінці двері обрамляється наличниками, посадженими на «рідкі цвяхи» і починає виконувати свою пряму функцію.