
Вбудований шафа купе часто розміщують в ніші стіни вітальні або спальні. Монтаж шафи ви можете зробити своїми руками, причому навіть без сторонньої допомоги. Ми вам розповімо, як правильно розрахувати габарити шафи купе, з чого збирати шафа і опишемо в подробицях весь процес.
Зміст статті:
Підготовчі роботи
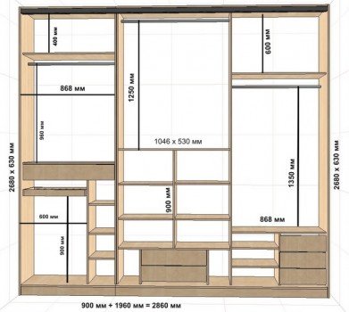
Припустимо, у вас в кімнаті є отвір шириною 340 см, який необхідно вбудувати шафа своїми руками з парою боковин, поличками і поперечиною для плічок. Для початку за рівнем слід розмітити праву боковину і зробити на стіні відповідні позначки.

Після цього вирізаємо на стелі плінтус, який може бути пінопластовим або пластмасовим. У цих випадках використовуйте звичайний гострий ніж, вирізавши проміжок, який буде потрібно для установки шафи. У цей проміжок зайде боковина майбутнього шафи купе.
Встановлення однієї боковини
Виміряйте рівень підлоги за допомогою лазерного нівеліра або звичайного рівня. Визначте нахил підлоги – він повинен бути не дуже великим (не більше сантиметра на метр). Боковину шафи купе при ширині шафи 340 см можна зробити 80 см – так у вас будуть легко вміщуватися будь плічка.
Якщо боковина не вміститься у ваше приміщення, розріжте її на дворі або на майданчику. При вимірюванні довжини робіть невеликий запас в кілька міліметрів. Після розмітки відріжте рівно стільки, скільки потрібно. Робити це зручніше електричним лобзиком. Не забудьте зрізати в нижній частині куточок під підлоговий плінтус.

Приставивши боковину, ви можете побачити, що кілька міліметрів з однією з сторін потрібно підрізати. Одна сторона може увійти вільно, а інша занадто щільно – такого бути не повинно. Отчерчиваем зазор маркером і акуратно відрізаємо надлишок лобзиком по свеженарисованной розмітці.
Після відрізання зайвих міліметрів обов’язково зашкурте кінці. Треба повністю видаляти фаску, а потім одягати планку. Ви побачите, що кінець планки вийде зайвим, так як сама по собі планка довше нашої боковини шафи купе, тому без поспіху треба одразу відрізати зайвий кінець планки. Робіть це ножівкою по металу.
Якщо боковина шафи добре стане на своє місце без зазору між стіною і боковиною, ви все зробили правильно.
Полиці першого відсіку
Приступаємо до розмітки поличок в самому першому відсіку шафи. Высверливаем отвори під них: робимо по два кріплення з обох сторін, щоб шафа міцно і надійно стояв. Вбиваємо дюбеля в отвори товщиною 6 мм

Після цього можна почати кріпити монтажні куточки на необхідну кількість полиць. Для цього вам знадобиться дриль, якої треба засвердлити куточки до стіни. Далі дійте в наступній послідовності:
Таким чином можете підготувати полиці наперед. Кріпимо до кожної полиці за чотири куточка, а потім прикручуємо їх до стіни і встановленою боковині.
Важливо, щоб боковина стояла максимально рівно, так як на ній буде триматися полку. Від того, куди спрямована боковина, буде залежати те, як буде кріпитися поличка до неї. Після фіксації верхньої полички можна переходити до другої, що знаходиться нижче. Кріпимо точно так само. Боковина шафи виставлена і верхня полиця стоїть на своєму місці, тому нічого нікуди вже не зрушиться.
Установка перегородки
Коли всі полки будуть прикріплені до боковині і стіни, можна монтувати перегородку шафи. Вимірюємо висоту від підлоги до стелі, а потім отпиливаем деталь за розмірами. Глибина перегородки може бути 510 мм Не забудьте одразу відрізати куточок під плінтус на підлозі.

Під перегородку, можливо, вам доведеться відрізати проміжок стельового плінтуса. Зробити це можна ножем. Вставте перегородку на своє місце і подивіться, як вона встала. Якщо зазору між плитою і стіною немає, вам не доведеться нічого підпилювати, відзначаючи маркером зайве. Подшлифовываем фаски і кріпимо накладку.
Полки другого відсіку
Такі полиці і перегородки кріпимо точно так само, як ми описали вище. Схема елементарна:

Починаємо кріпити з верхньої полиці і рухаємося вниз. Так дійдете до боковини на іншій стороні шафи. Основна частина шафи буде готова, а значить можна буде приступити до кріплення трубчастих перекладин.
Кріплення поперечин
Тут немає нічого складного – важливо тільки не промахнутися з довжиною труб і не відрізати зайвого. Відрізаємо по потрібній довжині і одягаємо насадки на кінці поперечини. Діаметр труби може бути 25 мм або більше. Вставляємо поперечину на місце і кріпимо її саморізами по фланців. Інші поперечини кріпимо точно за таким же принципом. Зазначимо, що з перекладинами важливо правильно робити всі виміри, перед тим, як відрізати.

Кріплення рейок і дверей
Остання частина збірки шафи купе – установка рейок. Верхня і нижня напрямна можуть бути будь-якого кольору. Виміряйте всі і відріжте рейки максимально точно. Кріпити їх треба саморізами до стелі і підлозі. Якщо вони бетонні, зробіть отвори дрилем і забийте дюбелі. Після цього можете встановлювати зібрані двері.
Ваш шафа готовий, і ви можете радіти виконаній роботі і отриманого результату. Процес установки шафи докладно описаний у цій відеоінструкції: