
Власники міських квартир часто сперечаються між собою, купувати міжкімнатні двері або виготовляти їх самостійно. Суперечка ділить людей на дві групи. Головне при цьому зрозуміти або врахувати той факт, що двері можуть мати різну конструкцію. Саме вони викликають складності при виготовленні і в процесі дискусії на цю тему. Незважаючи на поділ думок, виготовити двері міжкімнатні можна своїми руками.
Зміст статті:

Конструктивні особливості
Міжкімнатні двері – важлива частина інтер’єру приміщення всієї квартири. Двері дають нам можливість відчувати себе захищеними в будинку. Вони грають різні ключові ролі – забезпечують ізоляцію від мешканців виникають на кухні запахів, різних шумів, що доносяться з дитячих кімнат та ін. Сьогодні можна виділити два класи міжкімнатних дверей:
- фільончасті;
- щитові.
Вони відрізняються один від одного конструктивними особливостями. Фільончасті двері складаються з рами і вставлених у неї стекол з фільонками. Ділянка, виділена профільованими тонкими рамами або дерев’яний і пластиковий щиток, називаються фільонкою.

Фільончасті двері
Фільончасті двері володіють підвищеними звукоізоляційними властивостями і малою масою. Такі вироби непросто виготовити самостійно, так як конструкція досить складна, і ви навряд чи обійдетеся одним відео або підбіркою фото про виробництві подібних міжкімнатних дверей.

Щитові двері
Щитові двері, навпаки, цілком підходять для самостійного оснащення житлових будинків. Вони мають у своїй конструкції гладкий щит, який можна облицювати фанерою або пластиком. Головною перевагою таких дверей є доступна ціна і чудову якість. Крім того, ці двері вважаються універсальними, так як вони підходять як для кімнат, так і для санвузлів.

Існуючі покриття
Існує чотири основних види покриттів, які в наші дні використовують при виготовленні дверей:
- шпонування;
- фарбування;
- ламінування;
- тонування.
Найпростіші методи – це фарбування і тонування.

Фарбування
Виробники дверей фарбують в основному вироби з масиву, МДФ. Полотно покривається одним або декількома шарами фарби. Якість і термін служби таких дверей залежить від якості матеріалів і обладнання, які були використані компанією-виробником.

Тонування
В процесі тонування двері покриваються спеціальними лаковими сумішами, які бувають прозорими і напівпрозорими. За допомогою такого методу можна максимально підкреслювати фактуру деревини, так як на м’якому дереві залишаються дрібні вм’ятини і невеликі подряпини.

Ламінування
В процесі ламінування дверей фахівці використовують метод напресовування на основу плівки без клею. Плівка може бути паперовій або пластиковою. Перший варіант більш поширений.

Шпонування
У цьому випадку поверхня двері покривається тонкою плівкою товщиною не менше міліметра. Шпон зазвичай накладають на основу, після чого його покривають лаковими сумішами. Шпонування потрібно для масиву та міжкімнатних дверей з МДФ-плит.

Різновиди міжкімнатних дверей
Існують різні види міжкімнатних дверей, відрізняються один від одного способом відкривання. Серед них можна виділити п’ять основних типів, таких як:
- маятникові;
- розпашні;
- розсувні;
- складні;
- конюшинные.

Розпашні двері
Ці вироби найбільш поширені серед всіх. Вони відкриваються в певну сторону і можуть складатися з однієї або двох стулок. Якщо полотна мають різну ширину, такі двері мають назву полуторастворчатых. За способами монтажу розпашні двері поділяються на ліві і праві. Єдиним недоліком виробів є порівняно велика займане простір при відкриванні.

Маятникові
Цей підвид дверей відрізняється звичайною системою відкривання з деякою родзинкою. Їх головною відмінною рисою є можливість відкривання в обидві сторони. Така характеристика не надає дверям популярності, так як вибирають їх далеко не всі власники квартир. Хитні двері рідко встановлюють у міських квартирах, однак на входах в метрополітени їх можна зустріти досить часто. Маятникові двері можуть бути пластиковими, алюмінієвими і скляними. На фото ви можете побачити, як вони виглядають.

Розсувні
Такі двері відкриваються шляхом зрушування полотна всередину стіни або по напрямних рейках. Вироби володіють естетичним зовнішнім виглядом, особливо коли зсуваються всередину перегородки. Зсувні двері-купе відмінно підходять для тісних кімнат, так як не вимагають багато місця для відкривання.

Складні двері
Такий вид міжкімнатних дверей складається з окремо взятих панелей шириною по 10-15 см. при відчиненні вони складаються до одного з країв отвору і можуть навіть ховатися в стіні. Основними відмінностями дверей є їх легкість і безшумність ковзання панелей, що обумовлено вбудованими в ролики підшипниками. Панелі можуть бути заскленими або глухими. Скління зазвичай виконують за допомогою звичайного або вітражного скла, проте стоять такі конструкції приблизно вдвічі дорожче глухих варіантів.

Стаєнні
Це одна з різновидів простих розпашних дверей. Спочатку їх використовували тільки в стайнях, тому двері і отримали свою назву. Стаєнні двері складаються з двох половинок зі своїми замками та завісами. Такий тип міжкімнатних дверей найбільш популярний в західних країнах. У домашній обстановці ці вироби можуть виступати в якості захисту для тварин, так як нижня частина перегородить їм шлях на вулицю.

Використовувані матеріали
У давні часи двері проводилися з натуральної деревини, проте роки йдуть, і сьогодні існують численні замінники, що імітують природне дерево. Штучні і комбіновані матеріали коштують дешевше натуральної деревини. При цьому не можна вважати, що технологія виробництва міжкімнатних дерев’яних дверей залишилася в минулому. Навпаки, сьогодні такі двері цінуються особливо високо і займають провідні місця на ринку. Отже, які матеріали використовуються?

Дерево
Найбільш популярною хвойної породою для виробництва дверей вважається сосна, яка поширена за доступною вартості. Покрита прозорим лаком деревина має естетичний зовнішній вигляд за рахунок світлого відтінку і малюнка з темними вкрапленнями. Слід врахувати, що сосна – досить м’який матеріал, який навіть при несильному ударі гострим предметом може пошкодитися.
Установники дверей вважають, що міжкімнатні двері із сосни не слід встановлювати в приміщеннях з високою вологістю, таких як санвузол, басейн, зимовий сад. Справа в тому, що зміни рівня вологості викликає зсихання і розсихання матеріалу і його деформацію. Можливо, все так і було б, якщо б не існувало спеціальних засобів для обробки деревини будь-якої породи.
Бук, клен, дуб і червоне дерево коштують дорожче, але і виглядають набагато привабливіше. Вартість таких порід дерева залежить від міцності і естетичності деревини порівняно з іншими породами. Термін служби дверей з таких матеріалів при грамотному виробництві, обробці і монтажі перевищують десятки років.

Штучні матеріали
Для виробництва міжкімнатних дверей своїми руками можна використовувати МДФ або ДСП, які не можна порівнювати з натуральною деревиною по міцності і довговічності. Однак ці матеріали коштують набагато дешевше природного дерева. Термін служби дверей менше, а екологічні властивості дверей знаходяться під сумнівом, незважаючи на запевнення виробників.
Міжкімнатні двері, виготовлені з комбінованих матеріалів, в основному створюються з ДСП, МДФ і дорогого шпону. При покритті полотна дорогим шпоном, зовні двері складно відрізнити від натурального масиву, так як шпон виготовляють з деревини. Що стосується термінів служби і міцності, можна зазначити, що ці по цим параметрам двері не поступаються натуральним дерев’яним виробам. Крім того, комбіновані матеріали коштують дешевше, а також їм не страшні температурні і вологісні перепади.

Скло
Якщо розглядати матеріали, які використовують для виробництва міжкімнатних дверей, не можна пропустити скло. Вставки з нього в дверях оригінально прикрашають виріб і інтер’єр, несучи в собі певну функціональність. За рахунок доданого скла в приміщення через двері проникає денне світло, а це важливо у випадку з затемненими кімнатами.
За рахунок різноманіття кольорових відтінків стекол можна створювати різні дизайни в кімнаті. Скла можуть бути різними:
- різнокольорові;
- матові;
- прозорі;
- з візерунками та малюнками.
Найбільш безпечні – розжарені скла, які при розбиванні розлітаються на дрібні шматочки, не здатні порізати шкіру людини. Розжарені скла рекомендується використовувати для створення дверей в дитячу кімнату.

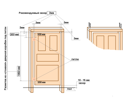
Метал
Дуже часто для виробництва міжкімнатних дверей використовується метал, з якого створюються ручки і петлі. Вартість фурнітури залежить від її зовнішнього вигляду, зручності використання виробу і його покриття. Петлі бувають роз’ємними і універсальними. До переваг роз’ємних петель відносять швидкий і легкий демонтаж конструкції.
Для зняття полотна необхідно підняти його вгору, і воно зіскочить з петель. На відміну від універсальних, такі петлі відкривають двері наліво або направо. Універсальні петлі використовуються для відкривання дверей в певну сторону. Демонтувати двері з універсальних петель важче.
Для демонтажу таких дверей потрібно розібрати петлю, витягнувши розміщений в середині шток. У магазинах і на ринку ви можете знайти петлі, які дозволяють відкривати двері в дві сторони, в залежності від напрямку, куди йде людина. Також вартість залежить від дизайну і матеріалу, з якого створюються дверні ручки.

Ущільнювачі
Пам’ятайте про таке незначне, на перший погляд, матеріалі, як ущільнювач. При закритій двері його не видно, проте він виконує важливі функції:
- підвищення звукоізоляційних властивостей;
- запобігання теплових втрат;
- перешкода для проникнення сторонніх ароматів і пилу в приміщення.
Ущільнювачі створюються з різних матеріалів і можуть бути різних кольорів і розмірів.

Підготовка інструментів до виготовлення дверей
Створення фільончастих дверей – процес непростий, що вимагає певних навичок, знань і досвіду. Однак разом з цим деякі міжкімнатні двері прості у виробництві і не вимагають особливих навичок. Для виготовлення таких дверей вам буде потрібно невеликий набір інструментів:
- ножівка;
- викрутка;
- стамеска або ножа;
- рулетка або метр;
- велика наждачний папір.
З матеріалів вам знадобляться наступні:
- досить товсті дошки до 50 мм завтовшки або брус для коробки: пару брусків для вертикальної частини і один для горизонтальної;
- бруси або рейки для каркасу: два довгих для вертикальної частини і три коротких для горизонтальної;
- фурнітура у вигляді петель, ручок, замків;
- оздоблювальні матеріали, такі як шпонировочная фанера, декоративна плівка, лак, фарба;
- клей і саморізи;
- ДВП для обшивки дверей з обох сторін.

Процес виготовлення
У стінах квартир і будинків є отвори, в які потрібно встановити двері. Якщо це вхідний отвір, краще встановити сталеві двері. Найбільш доступною за вартістю є та, яка створена своїми руками з фото. Також можна модернізувати куплене в магазині виріб. Для цього необхідно демонтувати полотно і укласти його на підлогу. Потім слід зняти фурнітуру і уявити, як вона буде виглядати після поліпшень.
Продумайте, яку поверхня буде мати двері – суцільні або у вигляді віконного плетіння. Другий варіант більш складний у виконанні, проте перший теж має свої особливості. Наприклад, вам доведеться знімати старий шар фарби з досить великої площі.
Ми ж розглянемо процес створення дверей з віконним палітуркою, поговоримо про використовуваному устаткуванні і процес обшивки поверхні шпоном.

Розмітка
Першим ділом потрібно виконати розмітку. Для цього використовуйте великий косинець і маркер для нанесення ліній на поверхню двері по фарбі. По сторонам потрібно зробити кілька відступів:
- зверху – не менше 16 см;
- знизу – не менше 50 см;
- по боках близько 10-11 див.
Прибираємо зайве
Після нанесення розмітки та вибору фрагмента полотна, від якого слід позбутися, потрібно озброїтися дрилем і зробити по 5-7 отворів у вивірених кутах з кроком близько 3-5 мм. Після цього потрібно зробити пропили за допомогою ножівки. Слідкуйте за тим, щоб всі лінії були абсолютно прямими.
Створення рамок
Необхідно вийняти випиляний шматок і вставити по контуру плетіння дерев’яні рейки, змастивши їх столярним клеєм. Всередині своєрідних рамок потрібно розмістити картонні панелі обшивки або фанеру.
Іноді при установці рейок картонні ребра між обшивкою заважають, тому їх можна виламати на потрібну глибину, використовуючи пасатижі. Клей буде сохнути кілька годин, але чекати повного висихання не обов’язково. Можна закріпити всі рейки по периметру маленькими гвоздиками, втоплюючи капелюшки в обшивку.
Тепер міжкімнатні двері готова до монтажу, а ви вмієте вибирати матеріал і знаєте, які можуть знадобитися інструменти. Після такої практики ви зможете створювати більш складні вироби своїми руками, дивлячись на відповідні фото.
У цьому відео докладно описаний процес монтажу міжкімнатних дверей, ви можете подивитися його якщо вам щось не ясно: